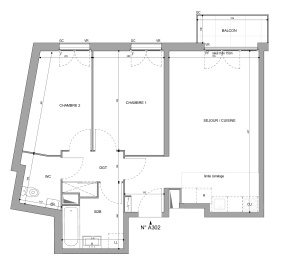
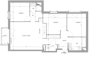
Appartement 98.98 m²
Montmorency
Voir le bien









